Aceasta proprietate nu mai este activa! Pentru oferte similare contactati agentul
De vanzare spatiu comercial nou - Peris, la strada principala
ID: P651 Peris
139
300.000€








Camere
1
Suprafata utila
280 mp
Front stradal
23 m
Parcari
12
An constructie
2025
Descriere
Ideal pentru showroom, birouri, cabinet medical, spații comerciale sau activitati de servicii.
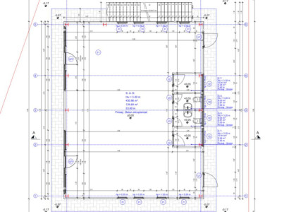
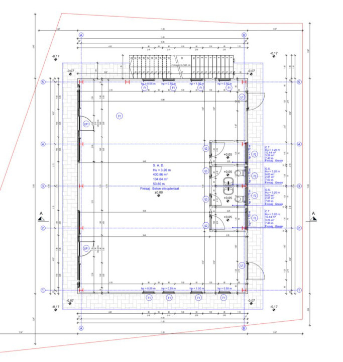
Va prezentam un spațiu comercial nou, finalizat în 2025, situat la strada Principala în Peris, intr-o zona cu vizibilitate excelenta și acces facil.
Proprietatea este compusă din parter și etaj (fiecare cu acces separat - etajul are scara exterioara), oferind flexibilitate totala în utilizare și compartimentare. Spațiile se pot și închiria separat.
- Suprafață totala: aproximativ 13m x 11m pe etaj
- Parcare: 12 locuri
- Incalzire: centrală proprie cu calorifere
- Hutil: 3.20m
- Fiecare spațiu are câte 2 uși.
Compartimentare:
- Ambele spații sunt open space și au câte 2 grupuri sanitare și 2 spații de depozitare fiecare.
Va invitam la o vizionare!
Citeste mai mult
Va prezentam un spațiu comercial nou, finalizat în 2025, situat la strada Principala în Peris, intr-o zona cu vizibilitate excelenta și acces facil.
Proprietatea este compusă din parter și etaj (fiecare cu acces separat - etajul are scara exterioara), oferind flexibilitate totala în utilizare și compartimentare. Spațiile se pot și închiria separat.
- Suprafață totala: aproximativ 13m x 11m pe etaj
- Parcare: 12 locuri
- Incalzire: centrală proprie cu calorifere
- Hutil: 3.20m
- Fiecare spațiu are câte 2 uși.
Compartimentare:
- Ambele spații sunt open space și au câte 2 grupuri sanitare și 2 spații de depozitare fiecare.
Va invitam la o vizionare!
Caracteristici
- ID:P651
- Nr. camere:1
- S. utila:280.00 mp
- S. construita:300.00 mp
- Front stradal:23.00 m
- Comp.:Open space
- Nr. bai:2
- Terase:1
- Nr. parcari:12
- An constructie:2025
- Structura rezistenta:Beton
- Regim inaltime:D+P+1
Specificatii
Curent
Apa
Canalizare
Gaz
Curent trifazic
Fibra optica
Utilitati in zona
Centrala proprie
Calorifere
Localizare
Esti interesat de aceasta proprietate ?
Completeaza datele tale și te vom suna noi!