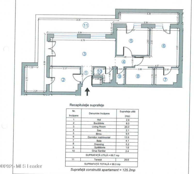
Apartament 3 camere | 99,3 mp | H Pipera Lake
ID: FX63721 Voluntari
181
195.000€ + TVA



















Camere
3
Suprafata utila
6970 mp
Bai
2
An constructie
2020
Descriere
Vă prezint un apartament complet mobilat si utilat de 3 camere, situat in H Pipera Lake potrivit atat pentru o familie la inceput de drum, cat si pentru un investitor.Apartamentul aflat la etajul 7/7, este orientat către Nord -Est si Nord- Vest, oferindu-vă o priveliste panoramica si un echilibru perfect de lumina pe tot parcursul zilei.Apartamentul semidecomandat are o suprafață utilă de 69.7 mp la care se adauga o terasa de 29,6 mp accesibila din toate camerele.*Prețul de listare include un loc de parcare suprateran.Vă aștept cu drag la vizionare!
Citeste mai mult
Caracteristici
- ID:FX63721
- Nr. camere:3
- Nr. dormitoare:2
- S. utila:6970.00 mp
- S. terase:2960.00 mp
- S. construita:9930.00 mp
- Nr. bucatarii:1
- Nr. bai:2
- Nr. balcoane:1
- An constructie:2020
Specificatii
Parchet
Complet mobilat
Localizare
Esti interesat de aceasta proprietate ?
Completeaza datele tale și te vom suna noi!