3 camere | langa Parcul Morarilor | 750m de Metrou Costin Georgian | Renovare |
ID: P639 Bucuresti, Morarilor
10
99.900€















Camere
3
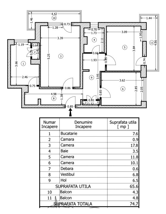
Suprafata utila
65.60 mp
Etaj
Etaj 4
Bai
1
An constructie
1978
Descriere
Te-ai gândit vreodată cum ar fi să te trezești în fiecare dimineață cu priveliștea unui parc verde și liniștit?
Acesta este mai mult decât un apartament – este șansa ta de a transforma o casa in "Acasa", locul perfect pe care l-ai visat mereu.
Cu toate ferestrele orientate către Parcul Morarilor, acest apartament de 3 camere de 74.7 mp totali, decomandat îți oferă o vedere care îți va încânta sufletul, într-un colț de liniște departe de zgomotul orașului.
Blocul finalizat in 1978, este reabilitat termic, iar locația ideală, la etajul 4 din 9, îți oferă un echilibru perfect între accesibilitate și intimitate.
Locuința necesită renovare completă, iar asta înseamnă că poți crea o atmosferă care să reflecte exact stilul și personalitatea ta.
În doar 10 minute de mers pe jos (750m conform google maps) ajungi la metrou Costin Georgian, iar accesibilitatea și proximitatea unui parc modern și curat transformă această proprietate într-o adevărată oportunitate.
E timpul să dai frâu liber imaginației și să creezi un apartament de vis la marginea Parcului Morarilor. Hai să descoperim împreună potențialul acestui apartament!
Rezumat:
- Tip: Apartament 3 camere, decomandat
- Suprafata totala: 74.7 mp
- Bloc din 1978 - neincadrat in nici o clasa de risc seismic
- Etaj: 4/9 (intermediar, accesibil)
- Vedere: Spre Parcul Morarilor, ferestre orientate exclusiv spre parc
- Balcoane: 2
- Bloc: Reabilitat termic
- Stare: Necesită renovare completă
- Localizare: La 10 minute (750m) de metrou Costin Georgian
- Zonă: Liniștită, departe de zgomotul traficului
Un tur video va poate fi furnizat la cerere pentru a face o idee mai buna asupra proprietatii sau il gasiti pe tiktok la o cautare dupa numarul de telefon.
Citeste mai mult
Acesta este mai mult decât un apartament – este șansa ta de a transforma o casa in "Acasa", locul perfect pe care l-ai visat mereu.
Cu toate ferestrele orientate către Parcul Morarilor, acest apartament de 3 camere de 74.7 mp totali, decomandat îți oferă o vedere care îți va încânta sufletul, într-un colț de liniște departe de zgomotul orașului.
Blocul finalizat in 1978, este reabilitat termic, iar locația ideală, la etajul 4 din 9, îți oferă un echilibru perfect între accesibilitate și intimitate.
Locuința necesită renovare completă, iar asta înseamnă că poți crea o atmosferă care să reflecte exact stilul și personalitatea ta.
În doar 10 minute de mers pe jos (750m conform google maps) ajungi la metrou Costin Georgian, iar accesibilitatea și proximitatea unui parc modern și curat transformă această proprietate într-o adevărată oportunitate.
E timpul să dai frâu liber imaginației și să creezi un apartament de vis la marginea Parcului Morarilor. Hai să descoperim împreună potențialul acestui apartament!
Rezumat:
- Tip: Apartament 3 camere, decomandat
- Suprafata totala: 74.7 mp
- Bloc din 1978 - neincadrat in nici o clasa de risc seismic
- Etaj: 4/9 (intermediar, accesibil)
- Vedere: Spre Parcul Morarilor, ferestre orientate exclusiv spre parc
- Balcoane: 2
- Bloc: Reabilitat termic
- Stare: Necesită renovare completă
- Localizare: La 10 minute (750m) de metrou Costin Georgian
- Zonă: Liniștită, departe de zgomotul traficului
Un tur video va poate fi furnizat la cerere pentru a face o idee mai buna asupra proprietatii sau il gasiti pe tiktok la o cautare dupa numarul de telefon.
Caracteristici
- ID:P639
- Nr. camere:3
- Nr. dormitoare:2
- S. utila:65.60 mp
- S. balcoane:9.10 mp
- S. construita:90.00 mp
- Comp.:Decomandat
- Etaj:Etaj 4
- Nr. bucatarii:1
- Nr. bai:1
- Nr. balcoane:2
- An constructie:1978
- Structura:Beton
- Tip imobil:Bloc
- Regim inaltime:S+P+9
- Orientare:Vest
- Clasa energetica:B
Specificatii
Curent
Apa
Canalizare
Gaz
CATV
Telefon
Acces internet
Fibra optica
Termoficare
Calorifere
Bloc izolat termic
Var
Parchet
Linoleum
Ferestre PVC
Ferestre Termopan
Usa intrare Metal
Usa interior Celulare
Usa interior Lemn
Debara
Bucatarie Nemobilata
Bucatarie Neutilata
Apometre
Nemobilat
Interfon
Lift
Localizare
Esti interesat de aceasta proprietate ?
Completeaza datele tale și te vom suna noi!