Apartament 3 camere zona Aviatiei – 99 mp, terasă, parcare inclusă
ID: P655 Bucuresti, Aviatiei
1
300.000€




















Camere
3
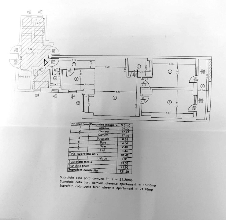
Suprafata utila
91.42 mp
Etaj
Etaj 2
Bai
1
An constructie
2013
Descriere
Imaginaţi-vă un apartament cu 3 camere în zona Aviatiei, unde ferestrele mari de la etajul 2 îmbrăţişează fiecare răsărit de soare (orientare est), oferind un început de zi plin de lumină şi energie.
Blocul, construit în 2013, are regim mic de înălţime (4 etaje + 2 retrase), lift şi gestionare eficientă a întreţinerii.
Living-ul de 34 m² îţi lasă libertatea să-ţi creezi spaţiul perfect: un pian lângă fereastră, o masă mare pentru familie şi prieteni, toate în acelaşi cadru primitor.
Cele două dormitoare, cu puţin peste 17 mp fiecare, ambele cu acces la terasa de 8 mp, îţi oferă intimitate şi confort; unul dintre ele include un walk-in dressing, un vis devenit realitate.
Locul de parcare suprateran este inclus in pret, astfel încât accesul şi parcarea sunt rezolvate.
Tur video disponibil pe toate canalele de social media (TikTok, Facebook, YouTube, Instagram) la o căutare după nume sau număr de telefon afişat.
Rezumat esenţial
• Tip proprietate: Apartament 3 camere
• Stare: Golaş, pregătit pentru personalizare
• Compartimentare: Semidecomandat
• Suprafaţă totală: 99,33 m²
• Etaj: 2 din 6
• Orientare: est-vest
• An construcţie: 2013
• Terasă: 7,91 m²
• Camere: 2 dormitoare (~17 m² fiecare) + living 34 m² + baie + bucătărie + hol
• Zona: Aviatiei, Bucureşti
• Loc de parcare suprateran: inclus
Vecinătăţi şi puncte de interes
• Parcul Parcul Herăstrău
• Staţia de metrou Pipera / transport în comun nord
• Centrul comercial Băneasa Shopping City
• Zona birourilor şi business din nordul Bucureştiului
• Spaţii de restaurante şi cafenele de top în zona Floreasca – Aviatiei
• Aeroportul şi conexiuni bune spre Nord-Vest
• Licee şi grădiniţe moderne în proximitate
• Spaţii verzi, piste de bicicletă şi o atmosferă relaxată de cartier rezidenţial cu blocuri joase.
Tur video disponibil pe toate canalele de social media (TikTok, Facebook, YouTube, Instagram) la o căutare după nume sau număr de telefon afişat.
Citeste mai mult
Blocul, construit în 2013, are regim mic de înălţime (4 etaje + 2 retrase), lift şi gestionare eficientă a întreţinerii.
Living-ul de 34 m² îţi lasă libertatea să-ţi creezi spaţiul perfect: un pian lângă fereastră, o masă mare pentru familie şi prieteni, toate în acelaşi cadru primitor.
Cele două dormitoare, cu puţin peste 17 mp fiecare, ambele cu acces la terasa de 8 mp, îţi oferă intimitate şi confort; unul dintre ele include un walk-in dressing, un vis devenit realitate.
Locul de parcare suprateran este inclus in pret, astfel încât accesul şi parcarea sunt rezolvate.
Tur video disponibil pe toate canalele de social media (TikTok, Facebook, YouTube, Instagram) la o căutare după nume sau număr de telefon afişat.
Rezumat esenţial
• Tip proprietate: Apartament 3 camere
• Stare: Golaş, pregătit pentru personalizare
• Compartimentare: Semidecomandat
• Suprafaţă totală: 99,33 m²
• Etaj: 2 din 6
• Orientare: est-vest
• An construcţie: 2013
• Terasă: 7,91 m²
• Camere: 2 dormitoare (~17 m² fiecare) + living 34 m² + baie + bucătărie + hol
• Zona: Aviatiei, Bucureşti
• Loc de parcare suprateran: inclus
Vecinătăţi şi puncte de interes
• Parcul Parcul Herăstrău
• Staţia de metrou Pipera / transport în comun nord
• Centrul comercial Băneasa Shopping City
• Zona birourilor şi business din nordul Bucureştiului
• Spaţii de restaurante şi cafenele de top în zona Floreasca – Aviatiei
• Aeroportul şi conexiuni bune spre Nord-Vest
• Licee şi grădiniţe moderne în proximitate
• Spaţii verzi, piste de bicicletă şi o atmosferă relaxată de cartier rezidenţial cu blocuri joase.
Tur video disponibil pe toate canalele de social media (TikTok, Facebook, YouTube, Instagram) la o căutare după nume sau număr de telefon afişat.
Caracteristici
- ID:P655
- Nr. camere:3
- Nr. dormitoare:2
- S. utila:91.42 mp
- S. terase:7.91 mp
- S. construita:121.29 mp
- Comp.:Semidecomandat
- Confort:1
- Etaj:Etaj 2
- Nr. bucatarii:1
- Nr. bai:1
- Nr. balcoane:1
- An constructie:2013
- Structura:Caramida
- Tip imobil:Bloc
- Regim inaltime:S+P+4
- Orientare:Est
Specificatii
Curent
Apa
Canalizare
Gaz
CATV
Telefon
Acces internet
Fibra optica
Centrala proprie
Calorifere
Aer conditionat
Bloc izolat termic
Vopsea lavabila
Parchet
Gresie
Ferestre PVC
Ferestre Termopan
Usa intrare Metal
Usa interior Lemn
Terasa
Bucatarie Nemobilata
Bucatarie Neutilata
Apometre
Contor gaz
Nemobilat
Interfon
Videointerfon
Lift
Localizare
Esti interesat de aceasta proprietate ?
Completeaza datele tale și te vom suna noi!