ID: P748 Voluntari, Central
1
153.000€













Camere
2
Suprafata utila
55.30 mp
Etaj
Etaj 7
Bai
1
An constructie
2024
Descriere
Caracteristici
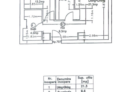
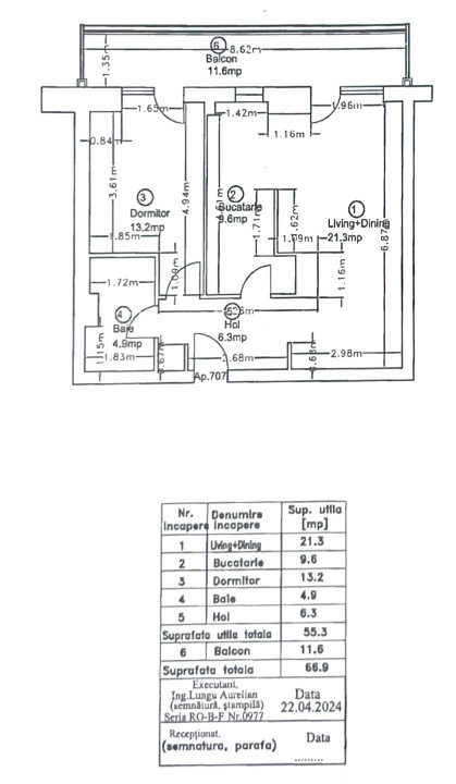
- ID:P748
- Nr. camere:2
- Nr. dormitoare:1
- S. utila:55.30 mp
- S. balcoane:11.60 mp
- S. construita:79.20 mp
- Comp.:Semidecomandat
- Confort:Lux
- Etaj:Etaj 7
- Nr. bucatarii:1
- Nr. bai:1
- Nr. balcoane:1
- An constructie:2024
- Orientare:Sud
Specificatii
Curent
Apa
Canalizare
Acces internet
Fibra optica
Incalzire pardoseala
Aer conditionat
Izolatie Exterior
Vopsea lavabila
Faianta
Parchet
Gresie
Ferestre PVC
Ferestre Termopan
Usa intrare Metal
Usa interior Lemn
Bucatarie Nemobilata
Partial mobilat
Videointerfon
Lift
Spatii agrement
Acoperis
Curte comuna
Localizare
Esti interesat de aceasta proprietate ?
Completeaza datele tale și te vom suna noi!